Études de Cas : Architecture


Conception et Coordination d'un Bâtiment Résidentiel
🔹 Client / Secteur
Cabinet d'ingénierie (mission en sous-traitance technique)
🔹 Année
2023, Durée : 6 mois
🔹 Contexte
Projet résidentiel d'environ 450 m² (30 m x 15 m) avec contrainte géotechnique liée à un sol peu porteur.
🔹 Enjeux
_ Sécuriser et adapter la conception des fondations _ Assurer cohérence technique globale _ Coordonner les acteurs du chantier
🔹 Solution apportée
_ Conception 2D et modélisation 3D _ Dimensionnement et adaptation des fondations _ Planification et coordination des intervenants
🔹 Résultats
_ Chantier réalisé avec succès _ Fondations sécurisées et optimisées _ Coordination technique maîtrisée


Conception et Optimisation d'un Bâtiment Résidentiel
🔹 Client / Secteur
Cabinet d'ingénierie (mission en sous-traitance technique)
🔹 Année
2024, Durée : 4 mois
🔹 Contexte
Bâtiment résidentiel ~250 m² basé sur une structure partiellement existante à reconfigurer.
🔹 Enjeux
_ Adapter le nouveau plan à l'ossature existante _ Assurer cohérence structure / réseaux _ Optimiser l'organisation chantier
🔹 Solution apportée
_ Conception 2D et modélisation 3D _ Dimensionnements techniques _ Planification et organisation Lean du chantier
🔹 Résultats
_ Chantier livré avec succès _ Intégration optimisée de l'existant _ Coordination technique maîtrisée


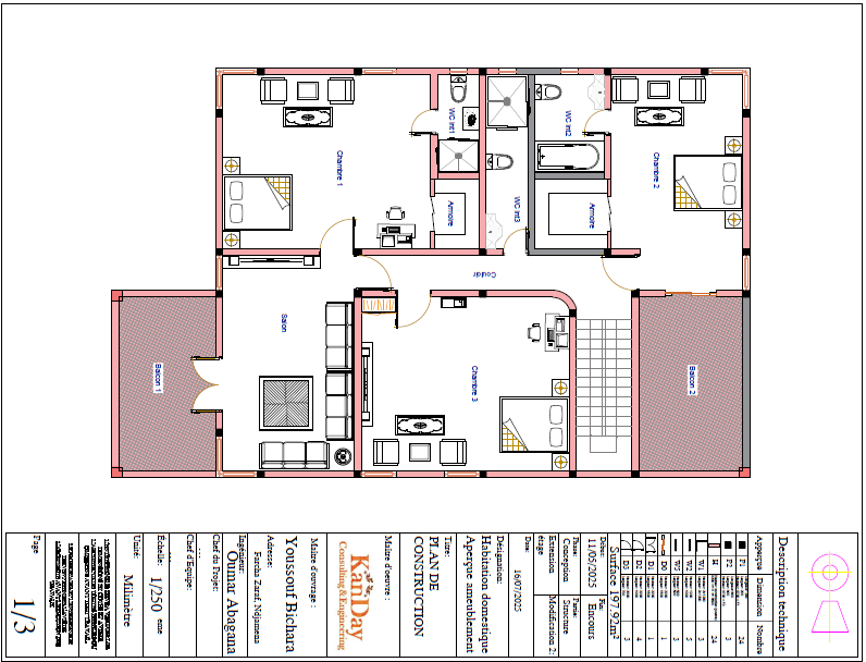
Conception Architecturale et Optimisation Fonctionnelle
🔹 Client / Secteur
Cabinet d'ingénierie (mission en sous-traitance technique)
🔹 Année
2025, Durée : 5 mois
🔹 Contexte
Bâtiment résidentiel d'environ 480 m² conçu à partir d'un croquis client à transformer en projet fonctionnel et moderne.
🔹 Enjeux
_ Adapter le croquis initial aux normes et usages réels _ Garantir fonctionnalité et cohérence spatiale _ Répondre à une exigence esthétique simple et contemporaine
🔹 Solution apportée
_ Conception des plans d'aménagement 2D _ Modélisation 3D complète _ Dimensionnements techniques _ Planification et coordination chantier
🔹 Résultats
_ Projet livré conforme aux attentes _ Aménagement optimisé et fonctionnel _ Chantier réalisé avec succès



Extension et continuité structurelle (Niveau 1)
🔹 Client / Secteur
Cabinet d'ingénierie (mission en sous-traitance technique)
🔹 Année
2025, Durée : 3 mois
🔹 Contexte
Extension à l'étage d'un bâtiment résidentiel existant (Projet 3), surface 180 m² + balcon 2x16 m².
🔹 Enjeux
_ Assurer la continuité structurelle avec l'existant _ Respecter la cohérence architecturale _ Maintenir un style simple et moderne
🔹 Solution apportée
_ Conception des plans 2D d'aménagement _ Modélisation 3D complète _ Dimensionnements techniques _ Planification et coordination des intervenants
🔹 Résultats
_ Extension intégrée harmonieusement _ Cohérence structure / architecture respectée _ Chantier réalisé avec succès


Aménagement Mixte Bureau et Résidentiel
🔹 Client / Secteur
Cabinet d'ingénierie (mission en sous-traitance technique)
🔹 Année
2025-2026, Durée : 8 mois
🔹 Contexte
Projet mixte bureau et appartement d'environ 60 m² dans un espace restreint à forte contrainte fonctionnelle.
🔹 Enjeux
_ Optimiser chaque mètre carré _ Intégrer double usage (professionnel & résidentiel) _ Maintenir un style simple et moderne
🔹 Solution apportée
_ Conception des plans 2D d'aménagement _ Modélisation 3D complète _ Dimensionnements techniques _ Planification et coordination chantier
🔹 Résultats
_ Espace optimisé et fonctionnel _ Cohérence architecturale respectée _ Chantier réalisé avec succès